Hamburg - Ohlsdorf
Maisonettewohnung am Alsterlauf – Großzügig, modern und naturnah
GRUNDSTÜCK
ca. 1.037 m²
WOHNFLÄCHE
ca. 164 m²
ZIMMER
5
BAUJAHR
1905
KAUFPREIS
890.000 €
Beschreibung
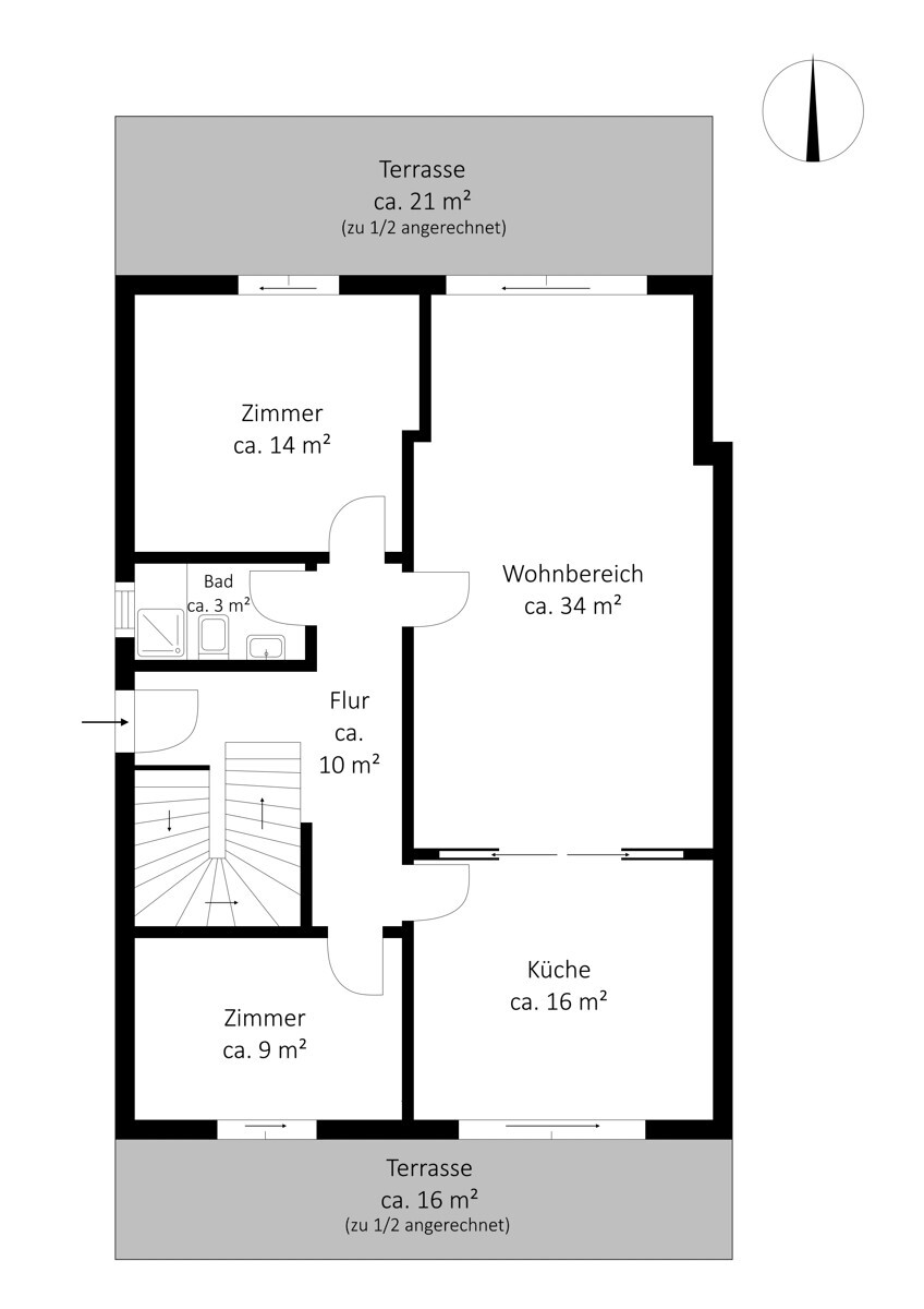
Diese außergewöhnliche Maisonettewohnung bietet rund 149 m² Wohnfläche und verbindet den besonderen Charme eines Altbaus mit modernen Akzenten. Die ruhige Lage unmittelbar am Alsterlauf macht dieses Zuhause zu einem seltenen Angebot in Hamburg.Schon beim Eintreten beeindruckt die Großzügigkeit der Räume. Hohe Decken mit feinen Stuckelementen, große Fensterflächen und ein klar strukturierter Grundriss schaffen ein helles, einladendes Ambiente. Edles Fischgrätparkett im Wohnbereich und hochwertiger Bodenbelag in den Schlafräumen unterstreichen die zeitlose Eleganz der Wohnung.
Die offene Küche fügt sich harmonisch in den Wohn- und Essbereich ein. Mit klarer Linienführung und hochwertigen Materialien ist sie ein Ort, an dem Design und Funktionalität perfekt zusammenspielen. Auf Wunsch lässt sich der Kochbereich durch ein elegantes Schiebeelement optisch abtrennen, sodass verschiedene Wohnsituationen flexibel gestaltet werden können.
Ein Balkon und zwei separate Terrassen erweitern den Wohnraum ins Freie. Hier genießen Sie sonnige Stunden und einen besonderen Blick ins Grüne. Der angrenzende Gemeinschaftsgarten bietet zudem direkten Zugang zum Alsterlauf. Eine Lage, die Lebensqualität auf höchstem Niveau verspricht.
Ein eigener Kellerraum sowie ein Garagenstellplatz runden dieses attraktive Angebot ab.
Kontaktieren Sie uns gern für weitere Informationen oder zur Vereinbarung eines persönlichen Besichtigungstermins. Wir freuen uns auf Ihre Anfrage.
| Objektart | Wohnung |
| Objekttyp | Maisonette |
| Vermarktungsart | Kauf |
| Wohnfläche | ca. 164 m² |
| Grundstücksfläche | ca. 1.037 m² |
| Anzahl Zimmer | 5 |
| Kaufpreis | 890.000,00 € |
| Hausgeld | 448,34 € |
| Provision | Käuferprovision beträgt 3,57 % (inkl. MwSt.) des beurkundeten Kaufpreises |
| Baujahr | 1905 |
| Zustand | Vollständig renoviert |
| Balkon | Ja |
| Stellplatzdetails | 1 Garage |
| Stellplätze | 1 |
| verfügbar ab (Datum) | 0000-00-00 |
| Energieausweis | Energieverbrauchsausweis |
| wesentlicher Energieträger | Öl |
| Endenergieverbrauch | 174,4 kWh/(m²a) |
| Baujahr lt. Energieausweis | 1996 |
| Energieeffizienzklasse | F |
Ausstattung
Ca. 149 m² Wohnfläche auf zwei EbenenRepräsentative Deckenhöhe mit klassischem Stuck
Originaler Fischgrätparkettboden im Wohnbereich
Hochwertiges Parkett in den Schlafräumen
Großzügige Fensterflächen mit viel Tageslicht
Offene Einbauküche mit Schiebeelement zur Raumtrennung
Balkon und mehrere Terrassenflächen
Gemeinschaftlicher Garten mit direktem Zugang zum Alsterlauf
Stilvolle Altbauarchitektur mit modernem Komfort
Ruhige und begehrte Lage in unmittelbarer Nähe zur Natur
lage
Die Wohnung befindet sich in Klein Borstel, einem der begehrtesten und ruhigsten Stadtteile Hamburgs. Die grüne Umgebung und die Nähe zur Alster bieten zahlreiche Möglichkeiten für Spaziergänge, Sport und Erholung in der Natur. Von dem Haus aus haben Sie direkten Zugang zum Alsterlauf, was ein ganz besonderes Highlight für Naturliebhaber und Freizeitaktivitäten darstellt.Trotz der ruhigen Lage ist die Anbindung an das Stadtzentrum und andere Stadtteile sehr gut. Die Autobahn ist in wenigen Minuten erreichbar, sodass Pendler von hier aus schnell unterwegs sind. Öffentliche Verkehrsmittel befinden sich in angemessener Entfernung und ermöglichen eine bequeme Verbindung in alle Richtungen.
Einkaufsmöglichkeiten für den täglichen Bedarf sind gut erreichbar, ebenso wie Schulen und Kindergärten in der Nähe. Auch der Flughafen Hamburg ist mit dem Auto in kurzer Zeit erreichbar.
Diese Kombination aus naturnahem Wohnen und guter Infrastruktur macht Klein Borstel zu einem idealen Ort für alle, die das Beste aus beiden Welten suchen.
Objektnummer: 1131HAM25
Büro Alstertal / Walddörfer
- info@fidania.de
- 040 334 671 110
Sie haben noch etwas auf dem Herzen?
Nehmen Sie Kontakt mit uns auf.
Adresse
Am Brink 8, 23684 Scharbeutz
Seiten: 1